High-Potential partially completed mixed-use commercial development

BRIEF

A partially completed mixed-use commercial development located in a prime metro city in South India is currently available for acquisition under the IBC liquidation process.

Key Highlights

  • Location: Strategically situated in a high-density urban neighborhood with excellent road connectivity
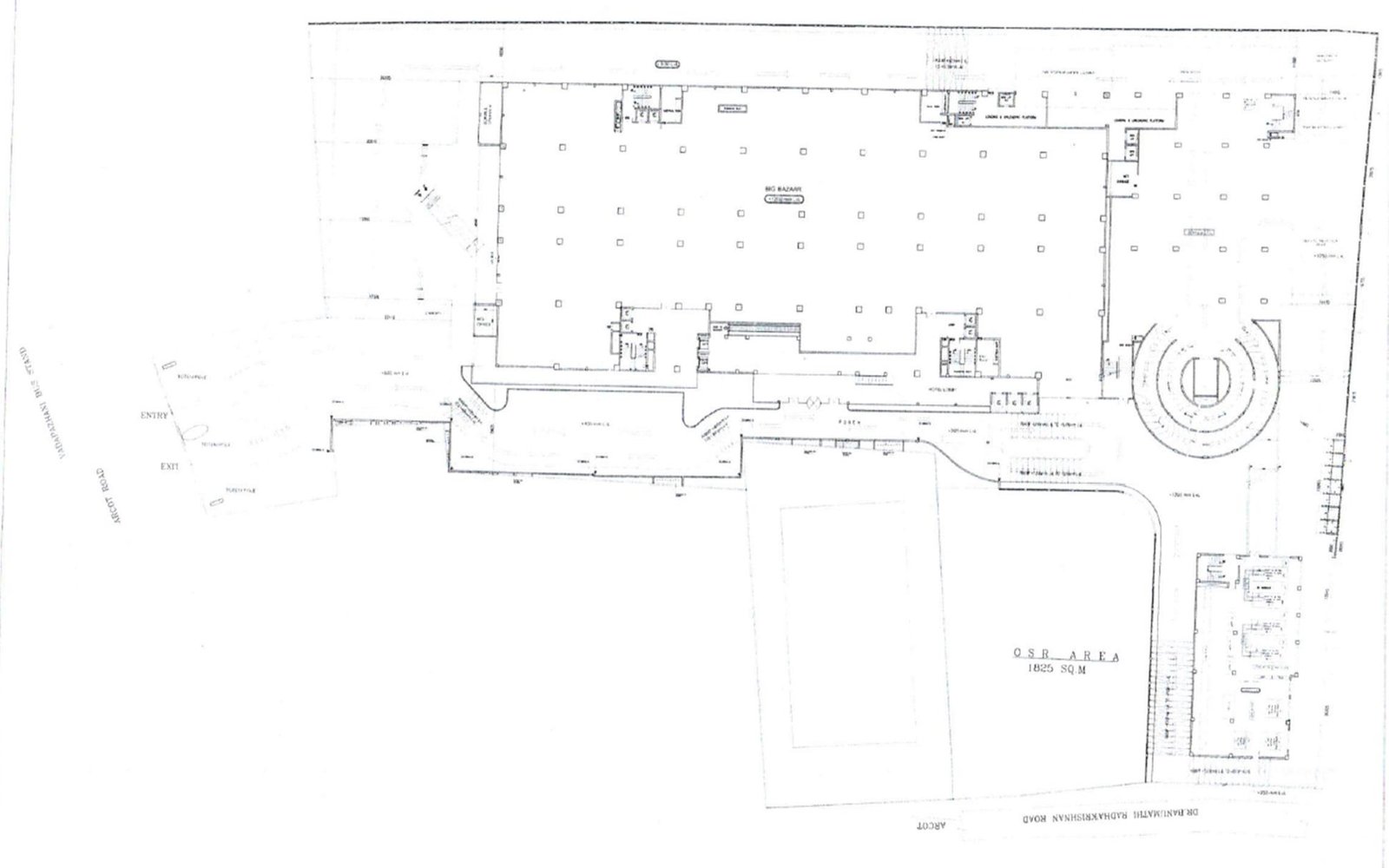
  • Asset Size: ~9 lakh sq. ft. of total planned construction across basement, ground + 10 floors
  • Land Area: 3.51 acres
  • Project Components: Shopping mall, multiplex, 220-room business-class hotel, multilevel car parking
  • Value Proposition: Large-format destination asset with strong catchment potential and high footfall visibility

Products & Services

The project is envisioned as an integrated retail and hospitality destination, offering scope for a shopping mall, entertainment zone (multiplex), hotel operations, and structured parking. Once completed, it can serve both commercial and leisure demand in a thriving city micro-market.

Additional Information

  • Project Status: Partially constructed; available for takeover through the liquidation process
  • Investor Requirement: Seeking interested parties to acquire and complete the project

A unique opportunity to acquire a large, partially developed mixed-use asset in a growing metro location with potential for significant upside post-completion.

GALLERY

BUSINESS DETAILS

BUSINESS DOCUMENTS

Teaser